Loading...
- Map




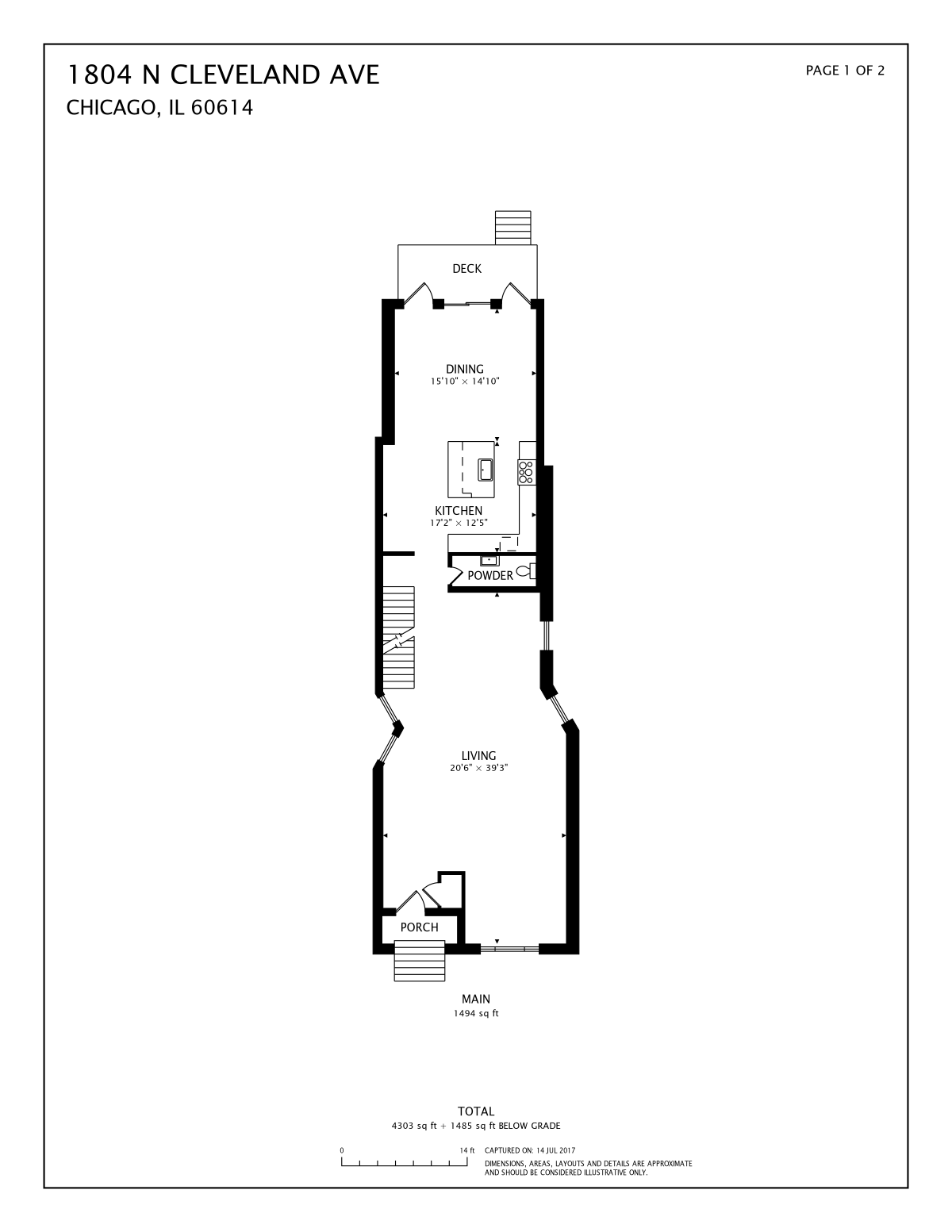
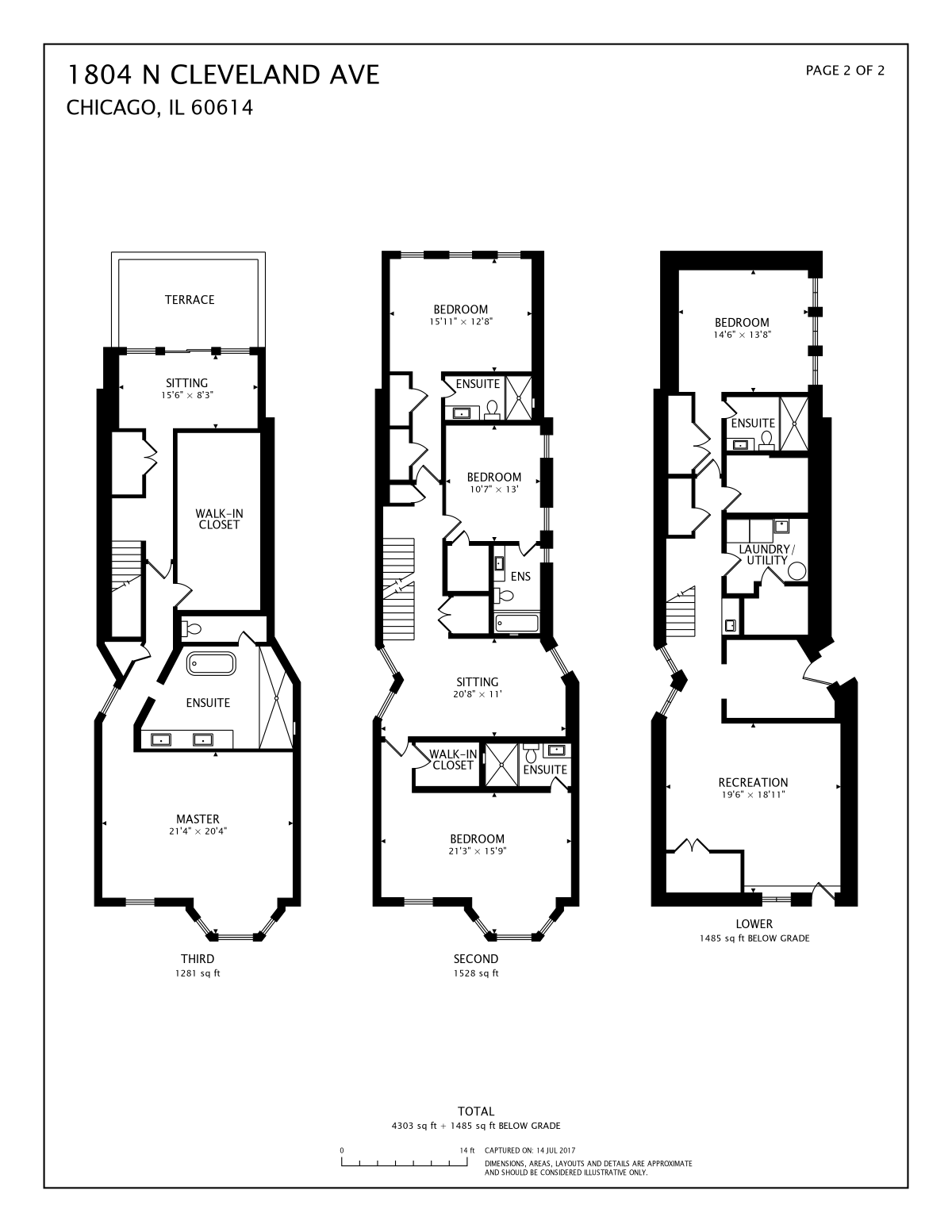
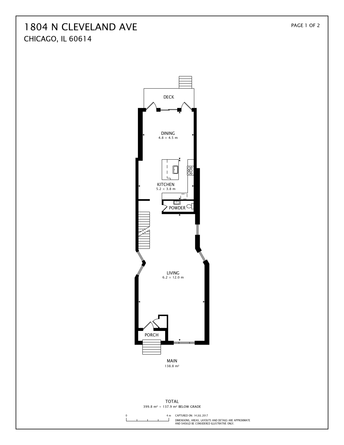
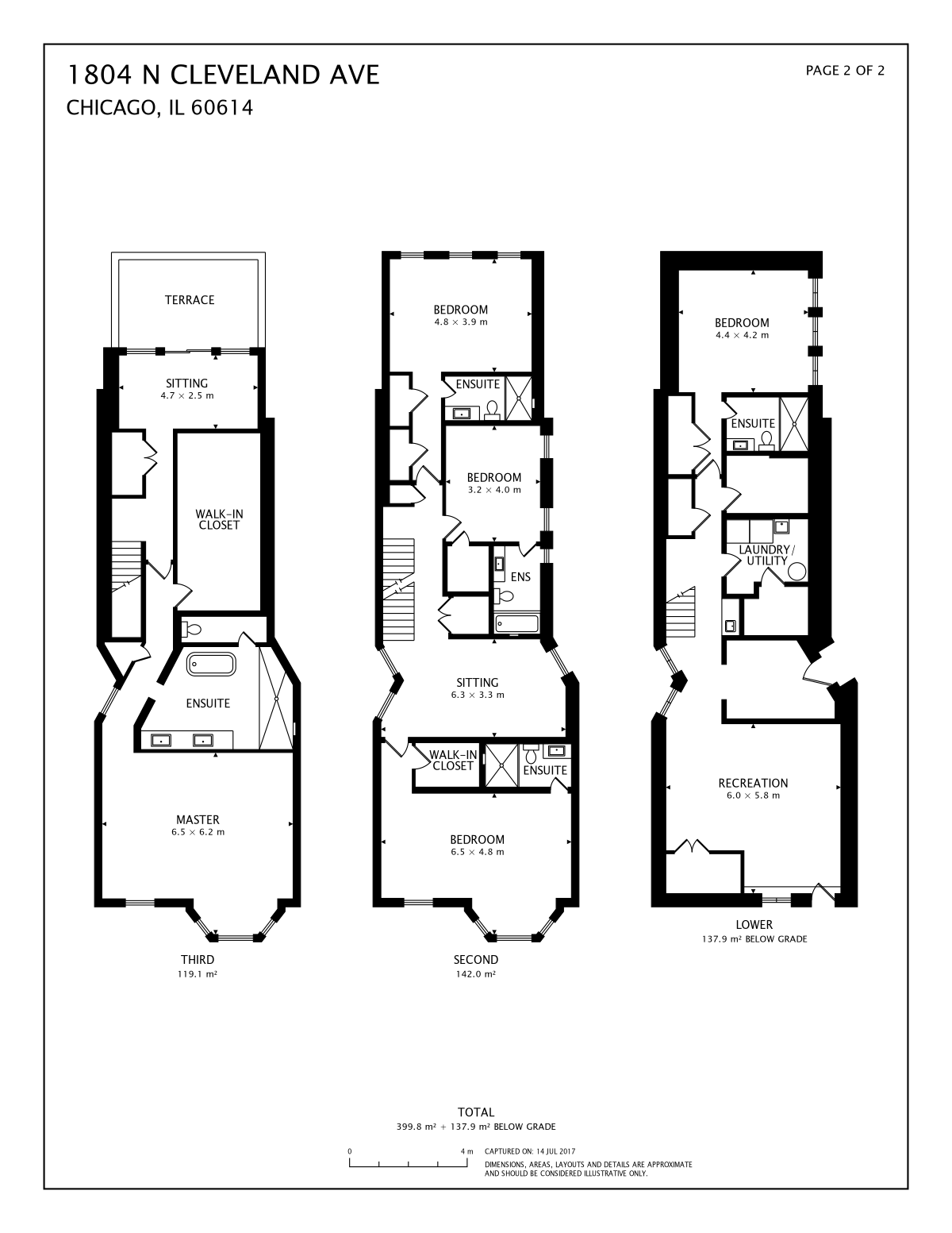
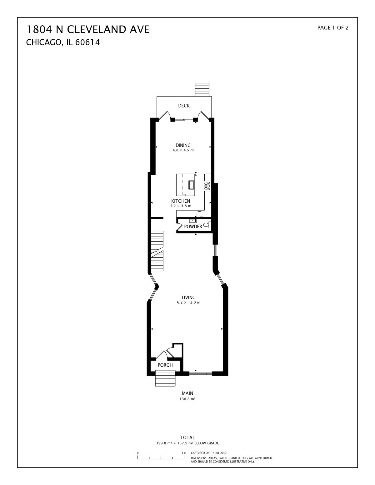
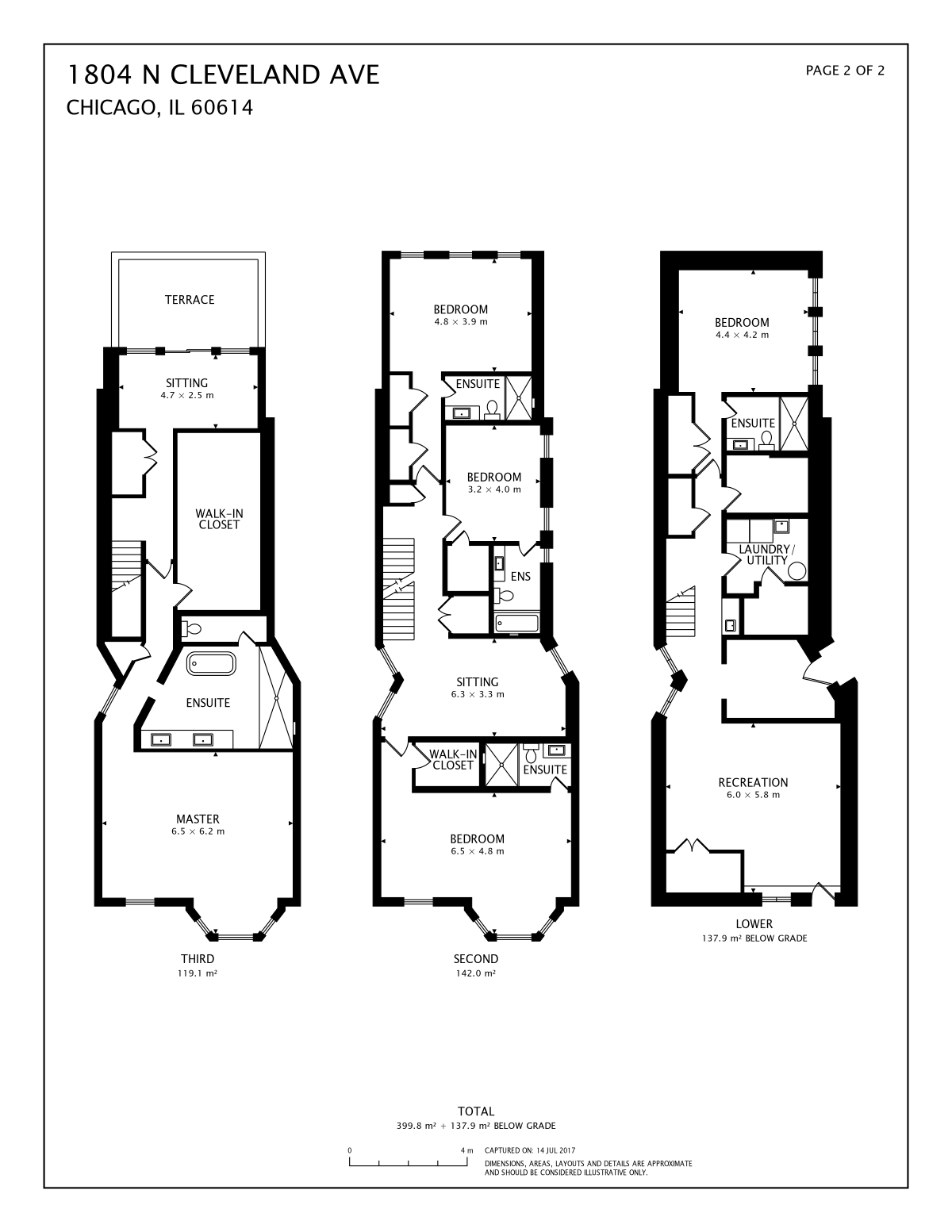
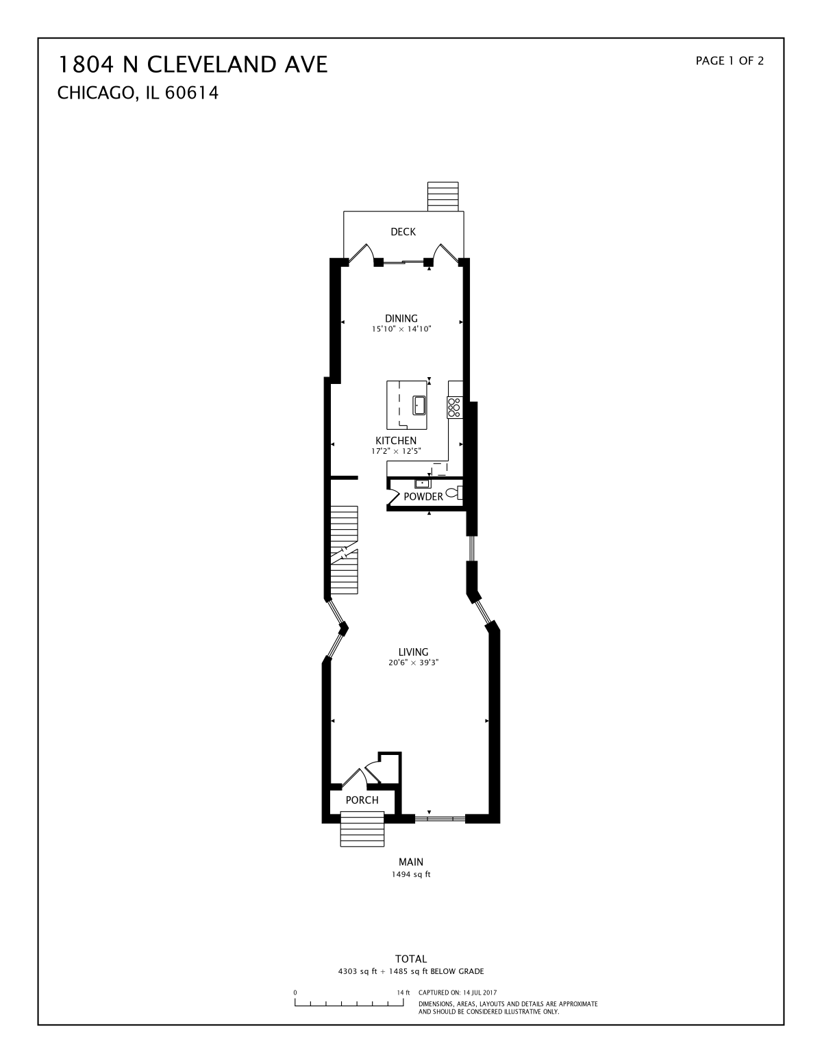
1804 N Cleveland Ave
Chicago, IL 60614
4303 sq ft + 1485 sq ft BELOW GRADE
;