;
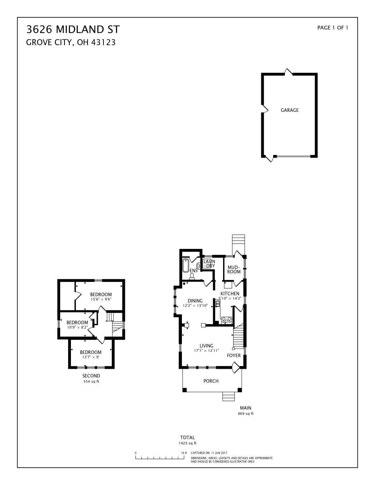
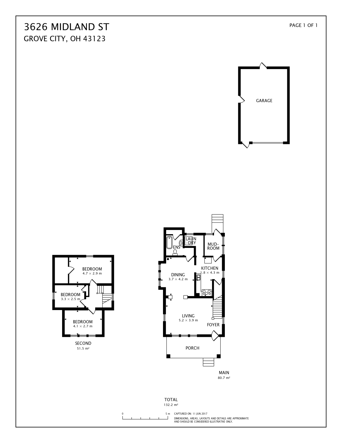
3626 Midland St
Grove City, OH 43123
Loading...
3626 Midland St Grove City, OH 43123

1423 sq ft
3
bedrooms
1
bathrooms
1
parking spaces